Neue vereinfachte Version demnächst!

 

Variabler Boden für beliebige Zargenformate

Einfach zu bauender Boden ausschließlich aus abgelängten Hobelbrettern und gehobelten Leisten, wie sie in jedem Baumarkt erhältlich sind mit Anflugbrett als Verschlussklappe, festem oder mobilem Varroagitter und viel Platz für Einschübe von hinten.

 

Materialliste:

Die Maße richten sich nach den Maßen der (vorhandenen) Zargen. Wenn die Zargen auch im Selbstbau hergestellt werden sind die Bienenabstände zu berücksichtigen.
Als Beispiel dienen alte Zanderzargen für 9 Waben.
Materialbedarf für Magazininnenmaße 36 x 50,6 cm ( 9 Zanderwaben)

Alle "Hobelbretter" haben eine Stärke von 18 mm, je nach Angebot in den Baumärkten lassen sich die Maße anpassen.

Bezeichnung Anzahl Maße Nr. in Zeichnung Funktion

Hobelbrett 1200mm breit
Hobelbrett 60mm breit
Hobelbrett 60mm breit
Hobelbrett 35mm breit
Hobelbrett 35mm breit
Dreiecksleiste 20mm
Quadratstab 20mmx20mm
Quadratstab 10mmx10mm
Dachlatte gehobelt 20mmx40mm
Hartfaser o.ä.
Varroagitter
Wiener Vorreiber klein
Leiste 20mmx10mm
Klavierbandscharnier
Schrauben
Nägel
Nägel
Tackerklammern

2
3
2
1
2
2
2
2
1
1
1
4
1
2
24
6
4
20
400mm
360mm
540mm
360mm
468mm
360mm
360mm
410mm
360mm
355mmx420mm
460mmx350mm

360mm
360mm
4x35mm
20mm
30mm
8mm
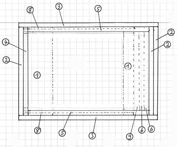
1
2
3
4
5
6
7
8
9
10
11







Grundbretter
Fluglochklappe, Schubklappe, Vorderfront
Seitenwände
Hintere Front
Innere Seitenfront
Bienenaufstieg
Bienenaufstieg
Führungsleiste Varroawindel
Befestigung Bienenaufstieg, Varroagitter
Varroawindel
Varroagitter
Verschluss Flugloch- u. Schubklappe
Stütze Varroagitter





Wert der Materialien für einen Boden: etwa 10.- €. Dieser Preis ergibt sich erst, wenn man mehrere Böden macht, da Leisten, Bretter Varroagitter und Scharniere nur in größeren Längen zu haben sind.

Mit Fluglochkeil im Winter Blick auf das Varroagitter und den Einflugbereich mit dem Bienenaufstieg Von hinten  

Die Höhe des Bodens hat sich mit den angegebenen Maßen bewährt. Hier ist das Varroagitter fest. Es könnte auch beweglich auf einem Rahmen von hinten eingeschoben werden.


Ansicht von oben

Zunächst werden die Bodenbretter (1) und die seitlichen Aussenbretter (3) miteinander so verschraubt, dass die beiden Klappen mit den Scharnieren angebracht werden können.

Nun auf das fluglochnahe Bodenbrett den Quadratstab (7) und die Dreiecksleisten (6) befestigen.

Den inneren Rahmen aus den Teilen (2), (4) und (5) zusammenschrauben. Dieser Rahmen kann als Falzersatz dienen oder bei falzlosen Zargen bündig mit den Aussenbrettern (3) abschließen (hier als Falzersatz gezeichnet). Im falzlosen Fall muss die Breite des inneren Rahmens entsprechend verringert werden.

Varroagitter von unten in den hinteren zwei Dritteln an den inneren Rahmen tackern.Rahmen in den Boden einsetzen und Varroagitter zwischen den Bienenaufstieg und die Leiste (9) einklemmen. Dann Leiste (9) von unten am Bodenbrett festschrauben.

Führungsleisten (8) anbringen und Vorreiber in die Stirnseiten der Bretter (3) schrauben.

 

 

 

 

 

 

 

 

 

 

 

 

 

 

 

 

 

 


Querschnitt

Ansicht von der Seite